网站首页 | 联系我们 | 留言反馈
温馨提示衡水旭通定制各规格型号的桥梁护栏支架、护栏支架、泄水管、铸铁泄水管系列产品,拥有大量现货,无需用户等待。孙经理:13603189763 18831835522
产品列表
联系我们
联系人:孙经理
电   话:0318-2153897
服务热线:13603189763
销售热线: 13903182836
公司邮箱:hssonghao@163.com
业务邮箱:757686268@qq.com Q    Q:757686268
地   址:河北省衡水市桃城区衡湖开发区
网   址:www.hbsonghao.com
详细新闻
当前位置:首页 > 新闻中心 > 工程案例 > 详细新闻

四川乐山道路连接线

作者:护栏支架 来源:www.hbsonghao.com 发表时间:2026-4-10 百度一下

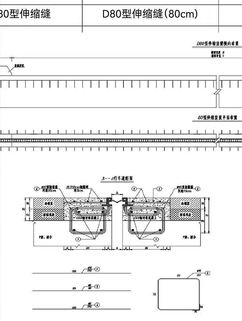
产品名称:桥梁伸缩缝

城市名称:四川乐山

施工名称:道路连接线


分享此文章:
上一篇:紫铜止水带
下一篇:黑龙江省灌溉区骨干工程
桥梁护栏支架、铸铁护栏支架、护栏支架、泄水管、桥梁泄水管、铸铁泄水管 版权所有:衡水旭通工程橡胶有限公司 技术支持:起航网络
电话:0318-2153897 手机:13603189763 13903182836 地址:河北省衡水市桃城区衡湖开发区 手机端网站  冀ICP备17012681号 网站地图XML html RSS订阅
友情链接:玻璃钢脱硫除尘器 | 充气芯模 | 支座更换 | 钢结构支座 | 河北升降机 | 消防排烟风机 | 西安活动板房 | 铸铁闸门 | 聚乳酸纤维 | 游泳俱乐部   城市推广列表